ID CP2969102

1 Decenbrie Mobilat

ID CP2969102

103,500 € (negociabil)

Apartament cu 3 camere de vânzare
Titan, Bucuresti
62 mp
1972

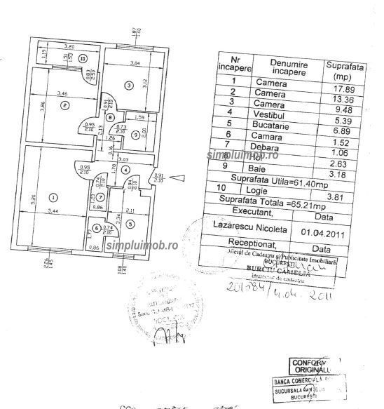
Vă prezentăm spre vânzare un apartament cu 3 camere, decomandat, cu o suprafață utilă de 65,2 mp, situat la etajul 4 al unui imobil construit în anul 1972, reabilitat termic.

Locuința a fost complet renovată în anul 2022 și oferă un nivel ridicat de confort, fiind dotată cu sistem de încălzire centralizată cu termostat individual, precum și cu două unități de aer condiționat — ideale pentru orice sezon.

Apartamentul se vinde complet mobilat și utilat, fiind echipat cu electrocasnice esențiale (frigider, aragaz, mașină de spălat), ceea ce îl face pregătit pentru mutare imediată sau pentru continuarea activității de închiriere. Baia este spațioasă și dotată cu cadă.

Imobilul este amplasat la aproximativ 10 minute de mers pe jos de stația de metrou 1 Decembrie 1918 și în imediata apropiere de Auchan Titan. Zona oferă acces facil către numeroase puncte de interes, precum Parcul IOR, Școala nr. 82, grădinițe, locuri de joacă, Policlinica Titan, precum și centre comerciale importante: IKEA, Decathlon, Dedeman și Leroy Merlin.

Pentru detalii si vizionari 0779324409 Vlad.

Citește mai mult

  • Tip apartament
    Apartament
  • Compartimentare
    Decomandat
  • Număr camere
    3
  • Dormitoare
    2
  • Număr bucătării
    1
  • Număr băi
    1
  • Geam la baie
    Da
  • Etaj
    4
  • Suprafață utilă
    62 mp
  • Suprafață construită
    71 mp
  • Suprafață totală
    65 mp
  • Disponibilitate
    Imediat
  • Orientare
    Sud-Est
  • Confort
    1
  • Stare interior
    Bună
  • Anul finisării
    2022
  • Număr balcoane
    1
  • Imobil
    Bloc de apart.
  • Stadiu construcție
    Finalizată
  • An construcție
    1972
  • Tip construcție
    Beton
  • Reabilitat termic
    Da
  • Număr etaje clădire
    4

Facilități

Acces pentru persoane cu dizabilități
Aer condiționat
Apă
Apometre
Aragaz
Bucătărie deschisă
Bucătărie mobilată
Bucătărie utilată
Cadă
Calorifere
Canalizare
Contor căldură
Contor electric
Curent
Dressing
Faianță
Ferestre PVC
Frigider
Geamuri termopan
Glet
Gresie
Hotă
Iluminat stradal
Interfon
Izolație exterioară
Mașină de spălat rufe
Mijloace de transport în comun
Mobilat complet
Parchet laminat
Străzi asfaltate
Termoficare
TV
Ușă intrare metal
Uși interior lemn
Vopsea lavabilă
Vlad Z - simpluimob.ro
Vlad Z
Agent

0779324409


Solicită chiar acum o vizionare
Telefon
Sună acum Solicită vizionare
Necesare:

Site-ul nu poate funcționa corect fără aceste cookie-uri. Vezi cookie-urile

Statistică:

Strângem statistici anonime despre voi, vizitatorii unici, pentru a vă îmbunătăți experiența dumneavoastră. Vezi cookie-urile

Marketing:

Pentru a ne promova mai eficient serviciile noastre, folosim cookies pentru a vă identifica și a vă oferi proprietăți și servicii personalizate. Vezi cookie-urile

Acest site folosește cookies, află detalii. Alege ce tipuri de cookies dorești să permitem: